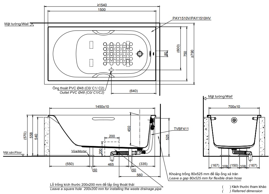
Bồn Tắm TOTO PAY1510HV#W+TVBF411
ĐƠN GIÁ MANG TÍNH CHẤT THAM KHẢO. LIÊN HỆ ĐỂ NHẬN ĐƯỢC BÁO GIÁ TỐT NHẤT (Call/Zalo)
GIAO HÀNG TẬN NƠI
Cập nhật
THƯƠNG HIỆU |
 |
MÃ SẢN PHẨM |
PAY1510HV#W+TVBF411 |
CHẤT LIỆU |
Nhựa |
KÍCH THƯỚC (mm) |
1500 x 750 x 558 |
TÍNH NĂNG NỔI BẬT |
Thiết kế sang trọng với độ sâu phù hợp
Bề mặt chống trơn trượt |